




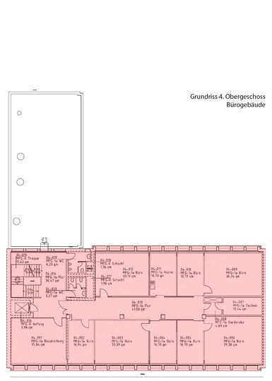
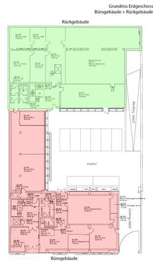
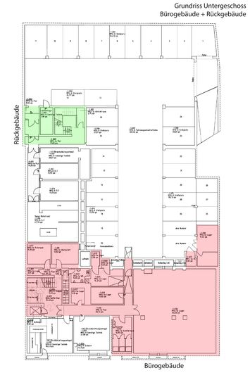
GRÖSSE BÜROGEBÄUDE Erdgeschoss ca. 409 m² 1. Obergeschoss ca. 502 m² 2. Obergeschoss ca. 500 m² 3. Obergeschoss ca. 487 m² 4. Obergeschoss ca. 360 m² Penthouse (Bürofläche) ca. 212 m² Penthouse (Terrasse) ca. 111 m² GESAMT ca. 2.581 m² RÜCKGEBÄUDE Erdgeschoss ca. 384 m² GESAMT BÜRO- u. RÜCKGEBÄUDE ca. 2.965 m² ARCHIVFLÄCHEN HAUPT- UND SEITENGEBÄUDE 1. Untergeschoss ca. 373 m² 2. Untergeschoss ca. 207 m² Tiefkeller ca. 20 m² GESAMT ca. 600 m² GESAMTFLÄCHE ca. 3.565 m² ERWEITERUNGSMÖGLICHKEIT Sowohl der Seitenflügel als auch das Rückgebäude können unter Umständen aufgestockt werden. Ebenfalls ist es vorstellbar, sowohl den Seitenflügel als auch das aufgestockte Rückgebäude in Wohnen umzuwandeln. KAUFPREIS 8.700.000,- EUR BEZUG ab sofort GRUNDSTÜCKSDATEN Gemarkung: St. Peter Flurnummer: 60/12 Grundstücksgröße: ca. 1.530 m² Bodenrichtwert: 2.500 EUR/m² (Stichtag: 01.01.2024) VERMIETUNGSSTAND frei seit 01.10.2025 BAUJAHR 1964 RENOVIERUNGEN 2001: Sanierung komplettes EG (inkl. Konferenz- und Eingangsbereiche), Umbau für Rechenzentrum, Innenhof 2006: Energetische Generalsanierung 4. OG und 5. OG Hauptgebäude; Einbau von Kühldecken, Sanierung aller Toilettenanlagen, Anbau der straßenseitigen Glasfassade ENERGIEAUSWEIS Energieverbrauchsausweis Stromverbrauchskennwert: 42,1 kWh/(m²*a) Heizenergieverbrauchskennwert: 7,1 kWh/(m²*a) Wesentliche Energieträger: Fernwärme
Das Objekt erstreckt sich über 3.565 m² und bietet ein exklusives Arbeitsumfeld, das sich aus Haupt-, Seiten- und Rückgebäude zu einer beeindruckenden Einheit fügt. Die lichtdurchfluteten Räume im Hauptgebäude, ausgestattet mit eleganten Fensterfronten, schaffen eine helle und einladende Atmosphäre. Dank der geplanten energieeffizienten Sanierung wird das Gebäude moderne Standards erfüllen und höchsten Komfort bieten. Der repräsentative Eingangsbereich sowie die hauseigene Tiefgarage sorgen für einen bequemen Zugang, während der ebenerdige Zugang über den Innenhof eine problemlose Anlieferung ermöglicht. Die alleinige Nutzung des gesamten Gebäudes garantiert Exklusivität in einer der begehrtesten Lagen Nürnbergs – ideal für anspruchsvolle Nutzung. Bürogebäude: - Teilweise Kühldecken, Kühlsegel, Lüftungsanlagen - CAT-7-Verkabelung - Licht-Präsenzsteuerung - Außenliegender Sonnenschutz - Hauseigene Tiefgarage mit 3 E-Ladestationen für PKWs - Ebenerdige Anlieferung - Personenaufzug - Notstromaggregat - Hochwertige Einbaumöbel und Konferenztechnik - Cafeteria mit Dachterrasse
Das Objekt zeichnet sich durch seine erstklassige Lage aus, nur wenige Gehminuten vom Nürnberger Hauptbahnhof entfernt. Diese Nähe gewährleistet eine optimale Anbindung an den öffentlichen Nahverkehr, während die Distanz zum Bahnhof zugleich ein ruhiges und angenehmes Arbeitsumfeld sicherstellt. Die Nähe zur Innenstadt bietet zudem eine ausgezeichnete Infrastruktur mit zahlreichen gastronomischen Angeboten, Dienstleistern und Einkaufsmöglichkeiten in unmittelbarer Nähe. Ein besonderes Highlight ist die Wöhrder Wiese in unmittelbarer Nachbarschaft, die mit ihren weitläufigen Grünflächen zum Entspannen und Verweilen einlädt. Diese einzigartige Mischung aus urbaner Anbindung und naturnahem Erholungsraum macht den Standort besonders attraktiv. ENTFERNUNGEN Bushaltestelle "Gleißbühlstraße" ca. 3 Gehminuten Naherholungsgebiet Wöhrder Wiese ca. 4 Gehminuten Straßenbahnhaltestelle "Marientor" ca. 4 Gehminuten U-Bahn-Haltestelle "Hauptbahnhof" ca. 5 Gehminuten Nürnberg Hauptbahnhof ca. 5 Gehminuten Frankenschnellweg ca. 9 Fahrminuten Autobahn A73 ca. 14 Fahrminuten Flughafen Nürnberg ca. 23 Fahrminuten
AUFTRAGGEBER Vertreten durch unser Büro. Wir sind vom Auftraggeber exklusiv beauftragt. BESICHTIGUNG Jederzeit ausschließlich über unser Büro möglich. Telefon: 0911 548099-0 | info@temme.de KÄUFERPROVISION 3,00 % zzgl. gesetzlicher MwSt., aus dem erzielten Kaufpreis, fällig bei Vertragsabschluss. ALLGEMEINES Wir werden tätig auf der Grundlage unserer Allgemeinen Geschäftsbedingungen, die auf www.temme.de einsehbar sind.
Temme Immobilien GmbH & Co. KG
Identität verifiziert
Temme Immobilien GmbH & Co. KG
Identität verifiziert
pro-exp-v2-59ccb5589c-2rnqn - 3-6086.2026-03-13T13:07:53Z